Наружная реклама
Реклама на радио
Реклама на телевидении
Реклама в интернете и печатных СМИ
Реклама в помещениях
Реклама на/в транспорте
Изготовление рекламы
в Артёме
О НАС
Фасад Медиа Групп – агентство наружной рекламы в Артёме и Приморском крае. Мы оказываем полный спектр услуг по изготовлению и размещению рекламы на цифровых суперсайтах (супербордах):
Рекламное агентство «Фасад Медиа Групп» предлагает большой выбор цифровых суперсайтов (супербордов) в Артёме, гибкие условия и приемлемые цены размещения рекламы. За изготовлением и размещением рекламы на цифровых суперсайтах (супербордах) Артёма обращайтесь по телефону: 8 800 201-23-74 или оставьте заявку на сайте. Размещение рекламы «под ключ» гарантируем!
Реклама на цифровых рекламных щитах пользуется большим спросом среди представителей артёмовского бизнеса. Востребованность данного вида рекламы объясняется целым рядом факторов:
Как можно видеть, реклама на цифровых суперсайтах (супербордах) в Артёме является эффективным средством для увеличения потока клиентов и повышения процента продаж. Многие столичные клиенты нашего рекламного агентства используют диджитал суперсайты (суперборды) для размещения рекламы на постоянной основе.
ООО «Фасад Медиа Групп» организует и сопровождает рекламные кампании:
При проведении рекламных кампаний нами используются различные конструкции наружной рекламы: медиафасады, щиты, сити-форматы, скроллеры, остановки, суперсайты, цифровые суперсайты (суперборды) и другие. Выбирая ООО «Фасад Медиа Групп», вы получаете высокий уровень сервиса и разумные цены. Обращайтесь, мы будем рады сотрудничеству.
РАЗМЕЩЕНИЕ РЕКЛАМЫ НА ЦИФРОВЫХ СУПЕРСАЙТАХ В АРТЁМЕ
Планируете размещение рекламы на цифровых суперсайтах в Артёме? - обращайтесь по телефону: 8 800 201-23-74 или оставьте заявку на сайте. Размещение рекламы «под ключ» гарантируем!
Что такое цифровой суперсайт или суперборд в Артёме?
Цифровой суперсайт или суперборд – это конструкция наружной рекламы, представляющая собой светодиодное (LED) рекламное поле (ш*в): 5x15 м, 3x12 м или 4x12 м, закрепленное на высокой металлической опоре и предназначенное для размещения рекламы (рекламных роликов) в целях привлечения внимания потенциальных клиентов к демонстрируемым товарам и услугам. Цифровой суперсайт (суперборд) предназначен в первую очередь для проведения крупных, имиджевых рекламных кампаний. Данный формат наружной рекламы идеально подходит тем рекламодателям, которым необходимо быстро и эффектно выйти на рынок товаров и услуг, которые планируют ярко и масштабно заявить о своей деятельности, а также тем, кто желает напомнить клиентам о собственном бренде, оживить его образ в памяти целевой аудитории.
Цифровой суперборд устанавливается вдоль оживленных трасс, загруженных шоссе и скоростных магистралей. Из этого можно сделать вывод, что реклама, размещенная на цифровом суперсайте (суперборде), ориентирована на водителей и пассажиров, которые движутся в плотном автомобильном потоке. Однако нередко цифровые суперборды можно увидеть возле больших торговых развлекательных центров и гипермаркетов.
Цифровой суперсайт относится к диджитал-рекламе (Digital Super Site) и предназначен для воспроизведения рекламного контента различного формата: от статичной картинки до видео в формате HD.
Цифровой суперсайт имеет сравнительно недавнюю историю происхождения. На данный момент в России насчитывается несколько тысяч рекламных конструкций подобного рода. Цифровые суперсайты пользуются большой популярностью среди столичных рекламодателей. Вложенные средства в рекламу на цифровом суперборде являются надежным инвестированием в ваш успешный бизнес.
Обращаем внимание! В ночное время суток в соответствии с требованиями администрации города и ГИБДД транслируются исключительно статичные изображения.
Примеры рекламы на цифровых супербордах в Артёме представлены на фото:

Пример рекламы на цифровом суперсайте. Фото 1

Пример рекламы на цифровом суперсайте. Фото 2

Пример рекламы на цифровом суперсайте. Фото 3

Пример рекламы на цифровом суперсайте. Фото 4

Пример рекламы на цифровом суперсайте. Фото 5
Какие виды рекламных цифровых суперсайтов (супербордов) существуют в Артёме?
Существуют различные виды цифровых супербордов:
1. По размерам рекламного поля:
2. По наличию освещенности:
3. По форме рекламного поля:
4. По количеству сторон:
Внимание! Сторона «А» – обращена к вам лицом в том случае, если цифровой суперборд расположен справа или посередине дороги. Сторона «Б» – обращена к вам лицом в том случае, если цифровой суперборд расположен слева через дорогу.

Сколько стоит реклама на цифровых супербордах в Артёме?
Многие столичные рекламодатели рассматривают цифровые суперсайты в качестве основной рекламной конструкции. Однако цифровые суперборды появились сравнительно недавно и общее их количество невелико. Большой спрос на данные рекламные конструкции, а также их высокая эффективность приводят к тому, что стоимость размещения рекламы на цифровых суперсайтах (супербордах) в Артёме является вариативной.
Цены размещения рекламы на цифровых супербордах различаются в зависимости от:
Для получения коммерческого предложения по условиям и ценам размещения рекламных материалов на цифровых супербордах в Артёме, необходимо указать следующие параметры:
Предоставление вышеприведенной информации является необходимым условием получения ценового предложения. После получения указанной информации наши менеджеры смогут подготовить коммерческое предложение с учетом целей и задач вашей рекламной кампании.
Сколько стоит рекламный ролик для цифрового суперсайта (суперборда) в Артёме?
Для размещения рекламы на цифровых суперсайтах (супербордах) необходимо изготовить рекламный видеоролик, соответствующий техническим требованиям рекламной конструкции. Стоимость создания или съемки видеоролика варьируется в зависимости от:
Приводим примерные цены на изготовление рекламных роликов для размещения рекламы на цифровых суперсайтах.
|
Экранная заставка |
Заставка-презентация |
Ролик-анимация |
Игровой ролик |
Коррекция ролика |
|
от 4000 руб. |
от 10000 руб. |
от 15000 руб. |
от 5000 руб. |
от 20000 руб. |
*Цены не являются публичной офертой.
Обратите внимание! Требования к рекламным роликам, демонстрируемым на цифровых супербордах, определяются не только техническими характеристиками самой рекламной конструкции, но и установлены законодательством России. Специалисты РА «Фасад Медиа Групп» обладают большим опытом, собственной студией и современным оборудованием для записи качественных рекламных роликов. Наши юристы готовы помочь Вам в подготовке рекламного контента, который соответствует требованиям ФЗ «О рекламе». Обратившись к нам, вы получите высокий уровень сервиса и разумные цены. Мы ждем вас!

Сроки размещения рекламы на цифровых супербордах в Артёме
Зачастую, наши клиенты, планирующие рекламную кампанию на цифровых супербордах, задаются вопросом: сколько времени требуется, чтобы разместить рекламу на цифровых суперсайтах? Отвечая на данный вопрос, специалисты нашей компании сообщают, что процесс размещения рекламы на цифровых супербордах разбит на этапы и у каждого из этих этапов свои сроки.
Необходимо сразу отметить, что под сроками размещения рекламы на цифровых супербордах можно понимать, как сроки подготовки к размещению рекламы, так и сроки демонстрации рекламного материала на цифровой конструкции.
Если говорить о сроках размещения рекламы на диджитал суперсайтах, то минимальный период составляет 15 дней. Стандартный период размещения рекламы составляет 30 календарных дней. Однако рекламодатель может выбрать иной период. Стоимость размещения рекламы при этом рассчитывается индивидуально.
На вопрос о сроках подготовки к размещению рекламы на цифровых суперсайтах, приводим примерные данные:
Как видим, процесс подготовки к размещению рекламы на цифровой конструкции может занять продолжительное время. Поэтому, чтобы успеть разместить рекламу именно в то время, когда это вам необходимо, следует продумывать процесс подбора рекламной конструкции заранее.

Целевая аудитория цифровых суперсайтов в Артёме
Что такое целевая аудитория? Именно такой вопрос нам задают наши клиенты, когда речь заходит о той категории людей, на которую ориентирована реклама на цифровых суперсайтах. Отвечая на данный вопрос, специалисты Фасад Медиа Групп сообщают, что под целевой аудиторией принято понимать группы людей, объединенных общими признаками, или объединенной ради какой-либо цели или задачи. Необходимо отметить, что целевая аудитория, на которую ориентирована реклама на цифровых суперсайтах в Артёме, довольно многочисленна. Тысячи людей ежедневно проезжают и/или проходят мимо цифровых конструкций наружной рекламы, обращают внимание на размещенную на них рекламу.
Итак, кому интересна реклама, размещенная на цифровых суперсайтах? Данные конструкции ориентированы, в первую очередь на:
Можно коротко сказать, что реклама на цифровых суперсайтах ориентирована на всех горожан.
Размещая рекламу на цифровых суперсайтах, вы сможете мгновенно охватить всех людей без исключения. Обратите внимание на крупные бренды, такие как Макдоналдс, KFC, Леруа Мерлен, Ашан и другие, понимающие, что прибыльность бизнеса зависит, в том числе и от того, насколько быстро потенциальный покупатель, клиент или заказчик увидит рекламу, размещенную на конструкции. Цифровой суперсайт подходит для этого как нельзя лучше.
В условиях городской среды размещение информации о компании на цифровых супербордах является эффективным средством продвижения бренда организации, поддержания внимания к вашему бизнесу, привлечения новых клиентов и удержания старых покупателей и заказчиков. Именно цифровые носители, установленные на улицах города, помогают горожанам увидеть необходимую рекламную информацию. Цифровые суперсайты способствуют быстрому распространению рекламной информации, хорошей заметности рекламного материала, делают рекламную кампанию еще более эффективной, а бизнес прибыльным. Для размещения рекламы на цифровых суперсайтах обращайтесь в рекламное агентство «Фасад Медиа Групп». Будем рады сотрудничеству.

Эффективность рекламы на цифровых суперсайтах
Цифровые суперсайты относятся к числу самых эффективных рекламных конструкций. Рекламодатели предпочитают размещать рекламу именно на цифровых суперсайтах, поскольку данная рекламная конструкция обладает целым рядом преимуществ. К их числу относятся:
Ввиду того, что цифровые суперборды задумывались изначально для охвата транспортного потока, большое рекламное поле делает рекламу хорошо видимой и позволяет потенциальным клиентам воспринимать рекламное объявление при движении даже на скорости.
Многие именитые бренды для своих рекламных кампаний выбирают именно цифровые суперборды, так как этот вид наружной рекламы является одним из самых инновационных, зрелищных и высокоэффективных. Реклама на цифровых супербордах – это выгодно!

Плюсы рекламы на цифровых суперсайтах
Многие клиенты нашего рекламного агентства задают вопрос: в чем плюсы размещения рекламы на цифровых суперсайтах? Отвечая на данный вопрос, специалисты Фасад Медиа Групп сообщают, что реклама, размещаемая на цифровых (диджитал) суперсайтах, отличается высокой эффективностью и массовым охватом населения, способна значительно повысить процент продаж и увеличить поток клиентов. Помимо этого, к плюсам размещения рекламы на диджитал супербордах можно отнести следующие аспекты:
Размещая рекламу на цифровых супербордах, вы гарантированно сможете увеличить узнаваемость бренда компании, добавить организации популярности и известности. При этом, вам не нужно тратиться на иную рекламу, поскольку благодаря своей эффективности цифровой суперборд можно использовать в качестве основной конструкции наружной рекламы. Цифровые суперсайты относятся к тем рекламным конструкциям, которые позволят значительно сэкономить время и деньги при продвижении собственного бренда на рынке товаров и услуг.
Порядок размещения рекламы на цифровом суперборде
Клиенты Фасад Медиа Групп, зачастую, задают вопрос: каков порядок размещения рекламы на цифровом суперборде? Отвечая на данный вопрос, менеджеры нашей компании сообщают, что размещение рекламы на диджитал суперсайте проходит по определенному алгоритму, который обусловлен как техническими характеристиками рекламной конструкции, так и требованием законодательства РФ о размещении наружной рекламы. Итак, приведем основные аспекты размещения рекламы на цифровом суперсайте:
Во-первых, необходимо создать (записать) и предоставить в рекламное агентство рекламный материал, которым является видеоролик. Выше уже указывалось на то, что рекламный ролик может быть выполнен как в виде заставки, анимации, репортажа, так и представлен полноценным видео, в том числе с элементами графики и 3D-графики. Предоставление записанного или созданного видеоролика рекламному агентству необходимо для его проверки на соответствие законодательным требованиям, установленным к рекламным материалам, размещаемым на улицах города.
Во-вторых, рекламодателю требуется решить вопрос о продолжительности рекламного ролика. Данный вопрос является очень важным, поскольку в дальнейшем именно от этого будет зависеть стоимость размещения рекламы на цифровой конструкции. Как правило, хронометраж рекламного ролика, размещаемого на цифровом суперборде, не превышает 5-10 сек. Вместе с тем, рекламный блок цифровой конструкции позволяет размещать ролики и большей длины.
В-третьих, необходимо решить, в какие даты будет выходить реклама на цифровой конструкции. Напоминаем, что минимальный период размещения рекламы на цифровом суперсайте составляет 15 дней. Вместе с тем, рекламодатель может заявить и меньший период. В этом случае стоимость размещения рекламы на диджитал суперборде будет пересчитана согласно установленным тарифам.
В-четвертых, рекламодатель должен определиться с количеством цифровых конструкций, которые ему необходимы для размещения рекламы, а также с местом их расположения. Не секрет, что одни конструкции установлены в проходимых местах с насыщенным транспортным и пассажирским потоком, другие находятся на выездах из города. Каждая конструкция «работает» на свою целевую аудиторию и способна решать определённые задачи в процессе проведения рекламной кампании.
Учитывая вышеизложенное, можно отметить, что размещение рекламы на цифровом суперборде является процессом хоть и не сложным, но поэтапным. Поэтому, планирование рекламной кампании на данной конструкции должно осуществляться заранее. По вопросу эффективного размещения рекламы на цифровом суперсайте обращайтесь к специалистам Фасад Медиа Групп. Мы поможем!
| Вид рекламы | Округ | Район | Адрес | Способ показа | Сторона | Стоимость |
|---|
ПРЕИМУЩЕСТВА РЕКЛАМЫ НА ЦИФРОВЫХ СУПЕРСАЙТАХ
Высокая частота контактов
В России насчитываются сотни тысяч конструкций наружной рекламы. Среди них большую популярность получили билборды 3x6, медиафасады, сити-форматы, скроллеры и другие конструкции. Однако существует еще один вид наружной рекламы, который отличается высокой популярностью и эффективностью. Речь идет о цифровых суперсайтах (супербордах). Широкая востребованность данного вида рекламной конструкции объясняется высокой частотой контактов потенциальных клиентов (целевой аудитории) с рекламным видеороликом. Рекламный ролик воспроизводится несколько сотен раз в течение суток. Люди, проходящие или проезжающие мимо данной рекламной конструкции, хорошо запоминают информацию о рекламируемых товаров и услугах.
Ввиду того, что цифровой суперсайт (суперборд) работает 24/7 (круглосуточно), рекламное объявление способно охватить максимальное количество людей. Потенциальные клиенты не могут не заметить рекламный видеоролик, в связи с чем реклама со 100% точностью доходит до адресата. Денежные средства, вложенные в рекламу на цифровом суперборде, являются превосходным инвестированием в успешный бизнес.
Хорошая заметность цифровых суперсайтов
Цифровые суперборды являются хорошо заметной конструкцией наружной рекламой. Пожалуй, цифровой суперсайт представляет собой рекламную конструкцию, которую просто невозможно не заметить. Обладая большими габаритами (5м x15 м или 4 x 12 м), цифровой суперсайт виден издалека, в любую погоду и в любое время суток. Данный факт не просто делает цифровой суперсайт заметной рекламной конструкцией, но и повышает эффективность рекламного ролика (объявления) в несколько раз.
Потенциальный клиент сможет увидеть рекламное объявление, находясь на значительном удалении от рекламной конструкции. Обращаем внимание, что данная конструкция наружной рекламы ориентирована в основном на водителей частных авто и пассажиров общественного транспорта.
Цифровые суперборды устанавливаются, как правило, вдоль скоростных шоссе, дорог, магистралей. Нередко можно увидеть цифровой суперсайт возле больших транспортных развязок. В связи с этим габариты конструкции способствуют тому, что и графическая, и текстовая информация отлично воспринимается на большой скорости. В больших городах цифровые суперборды устанавливаются также и возле гипермаркетов, а также напротив торговых – и бизнес-центров. Благодаря этому рекламодатель может быть уверен, что его рекламное объявление (рекламный ролик) сработает эффективно, а вложенные средства быстро окупятся.
Большое рекламное поле
Цифровой суперсайт или суперборд представляет собой светодиодный экран или диджитал-экран, закрепленный на металлической опоре, предназначенный для рекламирования товаров и услуг путем воспроизведения рекламного ролика. Одним из главных достоинств данной конструкции наружной рекламы являются габариты. Размеры диджитал экрана составляют, как правило, от 4 до 5 м. При этом высота опоры – от 12 до 15 м. Большое рекламное поле цифрового суперсайта (суперборда) выгодно отличает его от иных конструкций наружной рекламы.
Благодаря большим габаритам цифровых суперсайтов данные конструкции наружной рекламы являются хорошо заметными и эффективными, что делает их востребованными среди представителей бизнеса. Большие габариты цифровых суперсайтов (супербордов) не только позволяют заметить рекламное объявление издалека, но и дают возможность размещать на цифровых суперсайтах рекламные ролики большого разрешения. Данный факт положительным образом сказывается на эффективности особенно тех рекламных роликов, которые носят брендовый характер. Рекламодатели, которые желают быстро выйти на рынок товаров и услуг, донести до потенциальных покупателей и клиентов информацию о собственном бренде, должны использовать именно цифровые суперсайты в качестве основной конструкции наружной рекламы.
Месторасположение цифровых супербордов
Наружная реклама представляет собой один из наиболее эффективных инструментов продвижения товаров и услуг на российском товарном рынке. Многие рекламодатели используют конструкции наружной рекламы для размещения рекламных материалов в целях повышения узнаваемости товаров и услуг или для раскрутки бренда компании. Среди рекламных конструкций особой популярностью пользуются цифровые суперсайты или диджитал-суперборды. Важным достоинством данных конструкций наружной рекламы является их месторасположение.
Цифровые суперборды расположены чаще всего на оживленных транспортных потоках, вдоль магистралей, скоростных шоссе, транспортных развязках, перекрестках, возле гипермаркетов и крупных торговых центров. Выгодное расположение цифровых супербордов позволяет охватывать большой поток потенциальных покупателей или клиентов, привлекать внимание сотен тысяч человек, входящих в целевую аудиторию товара или услуги, делать рекламных ролик видимым издалека и в любую погоду. Выгодное месторасположение цифрового суперборда позволяет данной конструкции наружной рекламы занимать лидирующие позиции на рекламном рынке России.
Большая целевая аудитория
Цифровые суперборды отличаются высокой эффективностью и являются востребованными среди представителей бизнеса. Высокий спрос на данные конструкции наружной рекламы объясняется целым рядом факторов. Одним из главные являются габариты рекламной конструкции. Напомним, что цифровой суперсайт (суперборд) представляет собой конструкцию наружной рекламы высотой 15 м или 12 м. и шириной рекламного поля 5 м или 4 м. Вследствие больших габаритов цифровые суперсайты хорошо видны издалека и в любую погоду. Данное обстоятельство способствует большой целевой аудитории.
Цифровые суперборды охватывают большую городскую аудиторию. Ориентированы данные конструкции в первую очередь на водителей частных авто, пассажиров городского транспорта, туристов, жителей близлежащих домов, клиентов бизнес – и торговых центров. Ежедневно мимо цифровых супербордов проходят и проезжают тысячи человек. Следовательно, рекламная конструкция дает возможность донести информацию о товарах и услугах широкому кругу потенциальных клиентов и покупателей. Выбирая цифровой суперсайт (суперборд) в качестве основной рекламной конструкции, рекламодатели выгодно инвестируют в свой успешный бизнес.
СОВЕТЫ ПО РАЗМЕЩЕНИЮ РЕКЛАМЫ НА ЦИФРОВЫХ СУПЕРСАЙТАХ

Цифровой суперборд должен быть хорошо виден
Важной особенностью любой конструкции наружной рекламы, среди прочего, является хорошая заметность. Данное правило распространяется и в отношении наружной рекламы на цифровых суперсайтах. Цифровой суперсайт должен иметь хороший обзор, отличную видимость в любой сезон и в любую погоду. Если рекламная конструкция видна издалека, то эффективность рекламного объявления возрастает многократно, а вложенные средства в рекламу на цифровых суперсайтах быстро окупаются. Как выбрать цифровой суперсайт, рекламный ролик на котором будет хорошо заметен и эффективен в любое время? Делимся своим опытом.
Во-первых, цифровой суперсайт не должен быть загорожен растениями (деревьями, кустарником и т.д.), рекламной конструкцией, зданием, сооружением, большегрузами и т.д. Часто бывает так, что осенью или зимой цифровой суперсайт виден хорошо, но с наступлением весны листва и ветки загораживают рекламное поле. Может быть и так, что с началом строительства здания цифровой суперсайт заслоняется строительной техникой, стройматериалами, забором и т.д. Реклама, размещенная на таком цифровом суперсайте, становится неэффективной и не приносит рекламодателю ничего, кроме головной боли.
Во-вторых, старайтесь выбирать цифровой суперсайты 5 м x 15 м. Данные параметры являются оптимальными для того, чтобы рекламный ролик можно было увидеть издалека. Цифровой суперсайт, видимость которого составляет несколько десятков метров, является отличной конструкцией наружной рекламы и представляет собой наилучший способ привлечь не только целевую, но и «холодную» аудиторию. Рекламное агентство «Фасад Медиа Групп» советует своим клиентам внимательно выбирать конструкцию наружной рекламы.
Определитесь с районом и целевой аудиторией
В городе установлено большое количество разнообразных конструкций наружной рекламы. Среди них особое место занимают цифровые суперсайты или диджитал-суперборды. Наружная реклама на цифровых суперсайтах отличается хорошей заметностью, низкой стоимостью и широкой востребованностью. Рекламное объявление, размещенное на цифровом суперсайте, позволяет рекламодателям быстро доносить информацию до потенциальных клиентов. Вместе с тем не всегда рекламодатель ставит своей задачей массовый охват целевой аудитории. В связи с тем, что рекламный бюджет зачастую бывает ограничен, рекламодатель должен сконцентрироваться на отдельной категории граждан или на отдельный район города. Исходя из этого, необходимо решить, в каком районе размещать рекламный ролик на цифровом суперсайте, на какую аудиторию воздействовать рекламным объявлением.
Реклама, размещаемая на цифровых супербордах, рассчитана на широкий круг людей: пешеходы, водители частных авто, пассажиры общественного транспорта и др. Рекламное агентство «Фасад Медиа Групп» советует своим клиентам выбирать цифровые суперсайты, расположенные на перекрестках, трассах, магистралях с насыщенным транспортным и пешеходным потоками. Особое внимание обращайте на конструкции, установленные возле учебных заведений, ресторанов, клубов, больниц, деловых и торговых центров и т.д., одним словом, в местах скопления людей. Особенно эффективна реклама на цифровом суперсайте, установленном на перекрестке – такая конструкции наружной рекламы заметнее, на нее больше обращают внимание.
Спланируйте рекламный бюджет
Перед началом любой рекламной кампании на цифровых суперсайтах необходимо решить ряд задач, важной из которых является планирование рекламного бюджета. Рекламодатель должен ответить на вопрос: «Какое количество денег необходимо выделить для наружной рекламы на цифровых суперсайтах?». Данный вопрос является краеугольным, поскольку недостаточное финансирование приведет к неэффективности размещения рекламы на цифровых суперсайтах, а чрезмерное – к пустому расходованию средств. Помните, планирование расходов на наружную рекламу является важным шагом на пути к успешной рекламной кампании. Для правильного формирования рекламного бюджета необходимо ответить на вопросы:
Рекламное агентство «Фасад Медиа Групп» советует не идти по легкому пути, планируя бюджет по принципу «столько, сколько у конкурентов» или «сколько останется после всех расходов». В этом случае рекламная кампания на цифровых суперсайтах может оказаться не эффективной. Перед планированием рекламного бюджета необходимо представлять рынок, на котором вы действуете: его объем, качество и территорию. Четкое знание конкурентов, их «плюсов» и «минусов», их затрат и эффективности проведенных кампаний даст вам преимущества в рекламе. Помните, выход на рынок на длительный период требует значительных рекламных расходов, зачастую превышающих прибыль от реализации в течение длительного периода.
Соберите статистику и подведите итоги
Процесс размещения рекламы на цифровых суперсайтах должен тщательно анализироваться и заканчиваться подведением итогов. Рекламодателю, который не собирает статистику и не делает выводы из рекламной кампании, сложно будет понять, насколько эффективна была его рекламная акция, что удалось, а где были допущены ошибки. Обращаем внимание, эффективность рекламной акции на цифровом суперсайте не всегда прямо пропорциональна количеству обратившихся клиентов.
Очень часто клиенты обращаются спустя некоторое время, приняв решение о покупке товара или заказе услуге именно спустя некоторое время. Для получения объективной информации об эффективности рекламного объявления на цифровых суперсайтах, необходимо собирать статистические данные: количество обратившихся, время, прошедшее между размещением рекламы на цифровом суперсайте и обращением, источник информации о вашем товаре или услуге, интересуемый товар или услуга и т.д. Статистика рекламы на цифровых суперсайтах позволит в будущем определить рекламный ресурс, который проявил себя лучше и привлек максимальное количество клиентов, правильно сформировать рекламный бюджет, использовать нужный канал распространения информации.
Рекламное агентство «Фасад Медиа Групп» предупреждает: избегайте следующих ошибок при размещении рекламы на цифровых суперсайтах: постоянное изменение рекламного образа, креатив, оторванный от реальности, коммуникативные ошибки, игнорирование здравого смысла и создание негативного первого впечатления, кратковременное использование рекламного носителя.
Ищите цифровой суперборд с подсветкой и динамикой
Цифровой суперсайт, как правило представляет собой отдельно стоящую рекламную конструкцию 5 м x 15 м., установленную в центральных и людных местах города. Цифровые суперсайты бывают разных видов. Некоторые цифровые суперсайты освещены, некоторые нет. Рекламные ролики на отдельных конструкциях статичны (презентация, картинка), на иных, напротив, одно объявление сменяет другое. Каждая из указанных типов конструкций имеет свои плюсы. Однако рекламное агентство Фасад Медиа Групп советует своим клиентам: ищите цифровой суперсайт, который позволяет воспроизводить несколько видов рекламных роликов. Возникает закономерный вопрос: в чем причина? Ответ таков: психология потенциального клиента. Человек так устроен, что больше внимание обращает на тот объект, который находится в движении, перемещается, мигает или каким-либо образом изменяет свои параметры в пространстве.
По статистике сменяющееся рекламный ролик привлекает внимание потенциальной аудитории на 20% больше. В условиях современной динамичной жизни, при которой многие горожане живут в ритме «нон-стоп», выгодно размещать рекламу на освещенном цифровом суперсайте, рекламное объявление на котором хорошо видно не только днем, но и ночью, как в ясную, так и в пасмурную погоду. По статистике цифровой суперсайт, воспроизводящий динамичный рекламный ролик, на 15% лучше справляется с задачами рекламной кампании.
Что такое цифровой суперсайт или суперборд в Артёме?
Цифровой суперсайт или суперборд – это конструкция наружной рекламы, представляющая собой светодиодное (LED) рекламное поле (ш*в): 5x15 м, 3x12 м или 4x12 м, закрепленное на высокой металлической опоре и предназначенное для размещения рекламы (рекламных роликов) в целях привлечения внимания потенциальных клиентов к демонстрируемым товарам и услугам. Цифровой суперсайт (суперборд) предназначен в первую очередь для проведения крупных, имиджевых рекламных кампаний. Данный формат наружной рекламы идеально подходит тем рекламодателям, которым необходимо быстро и эффектно выйти на рынок товаров и услуг, которые планируют ярко и масштабно заявить о своей деятельности, а также тем, кто желает напомнить клиентам о собственном бренде, оживить его образ в памяти целевой аудитории.
Цифровой суперборд устанавливается вдоль оживленных трасс, загруженных шоссе и скоростных магистралей. Из этого можно сделать вывод, что реклама, размещенная на цифровом суперсайте (суперборде), ориентирована на водителей и пассажиров, которые движутся в плотном автомобильном потоке. Однако нередко цифровые суперборды можно увидеть возле больших торговых развлекательных центров и гипермаркетов.
Цифровой суперсайт относится к диджитал-рекламе (Digital Super Site) и предназначен для воспроизведения рекламного контента различного формата: от статичной картинки до видео в формате HD.
Цифровой суперсайт имеет сравнительно недавнюю историю происхождения. На данный момент в России насчитывается несколько тысяч рекламных конструкций подобного рода. Цифровые суперсайты пользуются большой популярностью среди столичных рекламодателей. Вложенные средства в рекламу на цифровом суперборде являются надежным инвестированием в ваш успешный бизнес.
Обращаем внимание! В ночное время суток в соответствии с требованиями администрации города и ГИБДД транслируются исключительно статичные изображения.
Примеры рекламы на цифровых супербордах в Артёме представлены на фото:
![]() |
![]() |
Какие виды рекламных цифровых суперсайтов (супербордов) существуют в Артёме?
Существуют различные виды цифровых супербордов:
1. По размерам рекламного поля:
2. По наличию освещенности:
3. По форме рекламного поля:
4. По количеству сторон:
Внимание! Сторона «А» – обращена к вам лицом в том случае, если цифровой суперборд расположен справа или посередине дороги. Сторона «Б» – обращена к вам лицом в том случае, если цифровой суперборд расположен слева через дорогу.
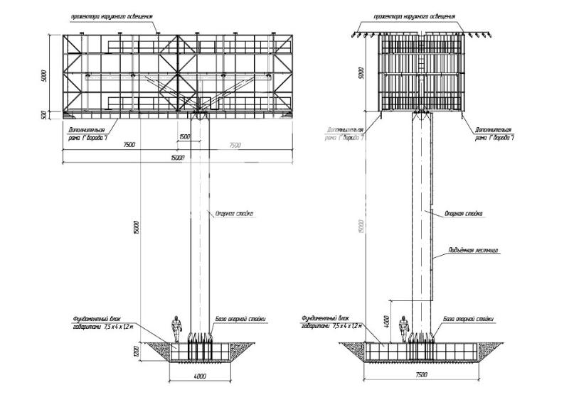
Каковы размеры цифровых супербордов?
Размеры стандартных цифровых суперсайтов составляют 5х15 м. и 4х12 м. Схематично габариты диджитал-супербордов представлены ниже:

Где установлены цифровые суперборды?
Цифровые суперборды чаще всего установлены:
Выгодное местоположение диджитал-супербордов позволяет с максимальной эффективностью доносить до целевой аудитории информацию, делая рекламу более эффективной.
Приводим примеры расположения цифровых супербордов:
![]() |
![]() |
![]() |
![]() |
![]() |
![]() |
Можно смело сказать, что реклама на цифровых суперсайтах очень эффективна. Под эффектом или эффективностью рекламы на цифровых суперсайтах следует понимать возможность и способность рекламы воздействовать на сознание человека при принятии им решения о покупке товаров и/или заказе услуг, работ. Так вот, благодаря целому ряду характеристик, диджитал суперборд относится к наиболее действенным (эффективным) в данном аспекте конструкциям наружной рекламы.
Эффективна ли реклама на цифровых супербордах?
Реклама, размещаемая на цифровых суперсайтах, является эффективным средством популяризации бренда компании, привлечения новых клиентов и повышения процента продаж. Что делает рекламу на диджитал супербордах эффективной? Эффективность рекламы на цифровой конструкции объясняется следующими аспектами:
Реклама на цифровых супербордах относится к числу наиболее эффективных. Денежные средства, инвестированные в диджитал-конструкции наружной рекламы, принесут быструю и ожидаемую отдачу.
Уважаемые друзья! Для размещения рекламы на цифровых супербордах обращайтесь в рекламное агентство «Фасад Медиа Групп». Высокий уровень сервиса и низкие цены гарантируем. Отчёт предоставляем бесплатно и в 100% объеме.
Обращайтесь 88002012374@mail.ru или 8 800 201-23-74
Какие требования предъявляются к дизайн-макетам для размещения рекламы на цифровых супербордах?
Реклама на цифровом суперборде может быть представлена в виде статичной растровой заставки. Это относительно недорогой, быстрый и эффективный способ распространения информации о рекламируемых товарах и услугах. Рекламодатель может самостоятельно изготовить дизайн-макет рекламы для размещения на диджитал-суперборде. При этом необходимо соблюсти ряд технических требований. Приводим общие требования к дизайн-макетам для размещения рекламы на цифровых супербордах:
Внимание! Рекламодатель самостоятельно несет ответственность за допущенные орфографические, пунктуационные, стилистические ошибки. Макет согласован только в том случае, если от вас поступит сообщение в письменном виде на электронную почту о факте проверки вами макета и его одобрения. После утверждения макета изменения не применяются, т.к. после получения одобрения макет направляется в печать немедленно.
Можно ли заказать изготовление дизайн-макета в ООО «Фасад Медиа Групп»?
Макет для размещения рекламы на цифровых супербордах можно заказать в нашем рекламном агентстве. У нас большой опыт по изготовлению дизайн-макетов для размещения рекламы на цифровых супербордах. Наши дизайнеры являются профессионалами и креативно подходят к делу. Ниже приведены цены по дизайну макетов рекламы на цифровых супербордах:
|
Услуга |
Кол-во |
Срок работы |
Цена* |
|
Дизайн макета |
1 шт. |
от 1 до 2 дней |
от 500 руб. |
|
Коррекция готовых макетов |
1 шт. |
от 1 день |
от 300 руб. |
|
Отрисовка схем |
1 шт. |
от 1 до 3 дней |
от 350 руб. |
|
Обработка фотографий, рисунков, эскизов и т.д. |
1 шт. |
от 1 до 3 дней |
от 150 руб. |
|
Коррекция текста |
1 шт. |
от 1 день |
от 200 руб. |
|
Ретушь, цветокоррекция, замена фона |
1 шт. |
от 1 день |
от 450 руб. |
|
Коллажирование и фотомонтаж |
1 шт. |
от 1 день |
от 900 руб. |
|
Привязать макет к объекту, фасаду (визуализация) |
1 шт. |
от 1 день |
от 150 руб. |
|
Изменение размера макета |
1 шт. |
от 1 день |
от 250 руб. |
*Цены не являются публичной офертой.
Какая информация предоставляется рекламодателем для создания дизайн-макета?
В случае, если вы закажите изготовление дизайн-макета у дизайнеров нашего рекламного агентства, от вас потребуется следующая информация:
Наши дизайнеры предоставят несколько вариантов макета на выбор. Правки вносим бесплатно до согласования с вами, но не более 3 раз. Последующее внесение правок осуществляется за отдельную плату. При проверке готового макета, просьба:
Примеры макетов от наших дизайнеров:
![]() |
![]() |
![]() |
![]() |
![]() |
![]() |
Как сделать рекламный макет самостоятельно?
Для того, чтобы сделать дизайн-макет будущей рекламы, не обязательно обращаться к профессионалам. Макет можно сделать самостоятельно. Сейчас в сети Интернет появилось большое количество онлайн-редакторов, которые предлагают полный набор функций по изготовлению, дизайну макетов. Вот один из них редактор. Также можно приобрести специальные программы, которые используются профессионалами для создания макетов. К таким программам относятся, в частности Adobe InDesign, Adobe Illustrator, Adobe Photoshop. Однако если вы хотите, чтобы макет рекламы «цеплял» ваших потенциальных клиентов и покупателей, то лучше воспользоваться услугами профессиональных дизайнеров, тем более, что стоимость работ не так высока.
На данном видео можно посмотреть процесс создания макета для наружной рекламы:
Как не допустить ошибок при подготовке дизайн-макета?
При подготовке макета важно соблюсти рад правил, которые помогут не допустить распространенные ошибки. Какие существуют правила создания макетов для наружной рекламы?
Правила подготовки макета смотрите на видео:
Уважаемые друзья! Для размещения рекламы на цифровых супербордах обращайтесь в рекламное агентство «Фасад Медиа Групп». Высокий уровень сервиса и низкие цены гарантируем. Отчёт предоставляем бесплатно и в 100% объеме.
Обращайтесь 88002012374@mail.ru или 8 800 201-23-74
Что такое РИМ?
РИМ – это рекламно-информационный материал, представляющий собой материальный носитель, содержащий информацию, распространяемую установленным законодательством РФ способом, в согласованных формах и с использованием согласованных средств, адресованную неопределенному кругу лиц и направленную на привлечение внимания к объекту рекламирования, формирование и/или поддержание интереса к нему с целью продвижения на рынке товаров и услуг.
Рекламным материалом для цифровых (диджитал) супербордов является видеоролик. Обращаем внимание, что диджитал-суперборды способны транслировать разные виды роликов:
Примеры рекламных роликов, транслируемых на цифровых супербордах, представлены на видео:
Сколько стоит создание рекламного ролика для цифрового суперборда?
Стоимость изготовления рекламного видеоролика для последующего размещения на цифровых (диджитал) супербордах разнится. Главным критерием в определении цены является вид рекламного материала. Вид рекламного ролика, в свою очередь, сильно зависит от целей и задач вашей рекламной кампании. Это, как говорится, отправная точка в вопросе ценообразования. Итак, приводим виды рекламных роликов и цены на их производство.
|
Вид рекламного ролика |
Срок изготовления |
Цена* |
Пример рекламы для наружной рекламы |
|
Заставка |
1 рабочий день |
от 2000 руб. |
|
|
Презентация |
от 1 до 2 рабочих дней |
от 3500 руб. |
|
|
С элементами презентации |
от 1 до 2 рабочих дней |
от 15000 руб. |
|
|
Анимация |
от 3 рабочих дней |
от 25000 руб. |
|
|
Игровой ролик |
от 3 рабочих дней |
от 45000 руб. |
*Цены не являются публичной офертой.
Какие требования предъявляются к рекламному ролику?
Требования к рекламным роликам для размещения на цифровых суперсайтах зависят от характеристик самой рекламной конструкции. Однако есть общие требования, которые предъявляются ко всем видам рекламных видеороликов, независимо от рекламной конструкции.
Приводим общие требования к рекламному ролику для размещения на цифровом суперсайте:
|
Длительность |
5 сек. (125 кадров) |
Дисклеймер |
набранным текстом в виде текстового блока |
|
Разрешение и ориентация |
1248 x 416 пикселей |
Цифровой контент |
не должен содержать black fading |
|
Количество цвета в каждом канале RGB |
не должно превышать 240* |
Формат |
JPEG (extension .jpg) с минимальной степенью сжатия |
|
Минимальный размер текста |
10 pixels** |
Цветовая модель |
RGB |
*Не допускается использование белого фона.
** Для текста высотой до 12 пикселей рекомендуется использовать простой, не тонкий шрифт из линий одинаковой ширины, без засечек.
Для анимированного контента:
|
Формат |
Пиксели |
Субтитры |
Звук |
Видеокодек |
|
ISO mpeg4 part 12 (extension .mp4 or .mov) |
Квадратные |
Без субтитров |
Без звуковой дорожки |
H.264 / MPEG-4 Part 10 or AVC |
Спецификация (рекомендуемые требования):
В случае изготовления рекламного ролика с применением анимации, просьба предоставить:
Уважаемые друзья, обращаем внимание, что рекламное агентство «Фасад Медиа Групп» оказывает услуги по производству рекламных роликов для цифровых супербордов. Наши специалисты в короткие сроки снимут или создадут качественный рекламный ролик, учитывающий все ваши требования и пожелания.
Вместе с тем, рекламный ролик может быть предоставлен вами, однако при этом он должен соответствовать требованиям, предъявляемым к рекламным материалам для цифровых супербордов.
Напоминаем, что цифровой (диджитал) суперборд представляет собой уникальную рекламную конструкцию, обладает индивидуальными техническими характеристиками, требует соблюдения определенных требований при производстве рекламных видеороликов. За консультацией при производстве рекламных материалов обращайтесь к нашим специалистам. Будем рады сотрудничеству.
Сколько времени требуется, чтобы разместить рекламу на цифровом суперсайте?
Отличительной особенностью цифровых суперсайтов является то, что эта рекламная конструкция воспроизводит рекламный ролик, загружаемый из единого центра. Следовательно, для размещения рекламы на цифровом суперборде требуется менее 1 рабочего дня. Управление и мониторинг процесса запуска рекламы также осуществляются из единого операционного центра, расположенного в центральном офисе рекламного агентства. При размещении рекламы на цифровом суперборде нет необходимости печатать и монтировать рекламный материал, что не только убыстряет процедуру размещения рекламы, но и делает ее дешевле. Короткие сроки запуска рекламы на цифровой конструкции объясняются еще и тем, что процесс запуска рекламы не обременен бюрократическими издержками и не зависит от погодных и иных условий.
Хорошо ли виден воспроизводимый рекламный ролик в дневное время и при ярком освещении?
Рекламное поле цифрового суперборда состоит из светодиодных панелей, которые могут передавать более 4 млрд цветов и оттенков. Данное обстоятельство обеспечивает яркость изображения и его хорошую видимость как в ночное, так и в дневное время.
Дополнительно необходимо отметить, что яркость экрана автоматически регулируется в зависимости от погодных условий, что существенно улучшает видимость рекламы даже в самый яркий солнечный день. К слову, яркость диджитал-суперборда в солнечный день доходит до 100%. В ночное время этот показатель составляет от 10 до 35% (в соответствии с требованием ФЗ «О рекламе»).
Приводим пример размещения рекламы на цифровом суперборде в дневное время:
![]() |
![]() |
Каким образом рекламные ролики демонстрируются на цифровом суперборде?
Яркость и заметность диджитал-конструкции приводит к тому, что многие наши клиенты желают разместить рекламу на цифровых супербордах. В связи с этим рекламные ролики рекламодателей объединяются в единый рекламный блок. Хронометраж рекламного блока составляет 60 сек. с последующим повторением рекламных роликов.
В рекламном блоке содержится от 6 до 12 роликов по 5 или 10 сек. каждый. 5-секундный рекламный ролик составляет 1/12 от всего рекламного блока, а 10-секундный ролик – 1/6. Рекламодатель имеет возможность выкупать то количество доли в рекламном блоке, которые ему необходимо. Выбор доли в рекламном блоке зачастую зависит от хронометража рекламного ролика и целей рекламной кампании.
Внимание! Рекламные блоки некоторых цифровых супербордов могут иметь больший или меньший хронометраж. Подробности уточняйте у наших менеджеров.
Уважаемые друзья! Для размещения рекламы на цифровых супербордах обращайтесь в рекламное агентство «Фасад Медиа Групп». Высокий уровень сервиса и низкие цены гарантируем. Отчёт предоставляем бесплатно и в 100% объеме.
Обращайтесь 88002012374@mail.ru или 8 800 201-23-74
Сколько стоит реклама на цифровых супербордах в Артёме?
Многие столичные рекламодатели рассматривают цифровые суперсайты в качестве основной рекламной конструкции. Однако цифровые суперборды появились сравнительно недавно и общее их количество невелико. Большой спрос на данные рекламные конструкции, а также их высокая эффективность приводят к тому, что стоимость размещения рекламы на цифровых суперсайтах (супербордах) в Артёме является вариативной.
Цены размещения рекламы на цифровых супербордах различаются в зависимости от:
Для получения коммерческого предложения по условиям и ценам размещения рекламных материалов на цифровых супербордах в Артёме, необходимо указать следующие параметры:
Предоставление вышеприведенной информации является необходимым условием получения ценового предложения. После получения указанной информации наши менеджеры смогут подготовить коммерческое предложение с учетом целей и задач вашей рекламной кампании.
Предусмотрены ли скидки при размещении рекламы на цифровых супербордах?
При размещении рекламы на цифровых супербордах мы даем своим клиентам скидки, которые могут доходить в отдельных случаях до 50%.
Каков минимальный период размещения рекламы на цифровых супербордах?
Минимальный период размещения рекламы на цифровых супербордах составляет 15 дней.
Какие факторы влияют на стоимость размещения рекламы на цифровых супербордах?
На стоимость размещения рекламы на цифровых суперсайтах значительно влияют следующие факторы:
Зависит ли стоимость размещения рекламы на цифровых супербордах от сезона или месяца?
На стоимость рекламы, размещаемой на цифровых супербордах, влияет месяц размещения. Ниже представлены сезонные коэффициенты:
|
Январь |
Февраль |
Март |
Апрель |
Май |
Июнь |
|
0.7 |
0.9 |
1.0 |
0.9 |
0.9 |
0.9 |
|
Июль |
Август |
Сентябрь |
Октябрь |
Ноябрь |
Декабрь |
|
0.8 |
0.9 |
1 |
1.1 |
1.15 |
1.2 |
Уважаемые друзья! Для размещения рекламы на цифровых супербордах обращайтесь в рекламное агентство «Фасад Медиа Групп». Высокий уровень сервиса и низкие цены гарантируем. Отчёт предоставляем бесплатно и в 100% объеме.
Обращайтесь 88002012374@mail.ru или 8 800 201-23-74
Размещение рекламного ролика на цифровых супербордах предполагает предоставление Заказчику отчета. Отчет может быть предоставлен курьером на бумажном носителе, либо в электронном формате на адрес электронной почты (e-mаil). Предоставление отчета включено в стоимость размещения рекламы на цифровых супербордах.
Обращаем внимание! Наше агентство предоставляет отчет, как правило, в течение 3-х рабочих дней после осуществления монтажа рекламы. Отчет предоставляется в 100% объеме.
Примеры наших работ можно посмотреть ниже:
![]() |
![]() |
|
![]() |
![]() |
![]() |
Уважаемые друзья! Для размещения рекламы на цифровых супербордах обращайтесь в рекламное агентство «Фасад Медиа Групп». Высокий уровень сервиса и низкие цены гарантируем. Отчёт предоставляем бесплатно и в 100% объеме.
Обращайтесь 88002012374@mail.ru или 8 800 201-23-74
Принимаем заявку
Позвоните или оставьте
заявку на сайте
Предлагаем услуги
Анализируем проблему
и предлагаем решение
Заключаем договор
Приходим к соглашению и подписываем документы
Оказываем услуги
Выполняем обязательства в полном объеме и в срок
Многие рекламные конструкции находятся в управлении нашего рекламного агентства. Это дает нам возможность устанавливать разумные цены без лишних комиссий и условий.
Наружная реклама
Реклама на радио
Реклама на телевидении
Реклама в интернете и печатных СМИ
Реклама на/в транспорте
Реклама в помещениях
Изготовление рекламы
Фасад Медиа Групп – это высокотехнологичное рекламное агентство, талантливый и креативный коллектив которого воплощает в жизнь сложные, смелые и интересные рекламные проекты.
На сайте используются файлы Cookie и Рекомендательные технологии. Продолжив работу с сайтом, Вы соглашаетесь с Политикой обработки персональных данных и правилами пользования сайтом